建筑语言的转化
西铁近期完成的高质量项目-武夷新区文化艺术中心, 它位于福建武夷山脚下的武夷新区,这组建筑以开阔、壮观的格局设计,控制住新城规划的宏大轴线,并成为了先行建设的城市地标,为武夷文化区添光加彩。
情感的产生

2021
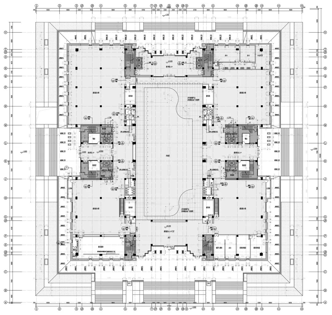
通过设计分析得知,武夷新区文化艺术中心功能较为复杂,有图书馆、规划展览馆、美术馆和大剧院等,即便如此, 设计师也并没有采用分散和复杂的体量组合方式,而是将其整合成“天圆地方”、虚实相生的一方一圆的一组建筑。“天圆地方”是中国古代传统宇宙观、天地观的体现。虚实相生中的“虚”与“实”是中国古典哲学中的重要命题。
宁静致远



◤ 以方为母题
文化中心以方为母题,属于“天圆地方”中的“方”,以及“虚实相生”中的“虚”,设计师将其中核心精彩的部分——方形共享空间布置在建筑的中心,宽敞宏大的方形共享空间不仅紧密联系各个展厅,还与南北两个方向的开放性广场空间相联系,形成一91吃瓜网 相互关联的室内外空间序列。


素雅大气的文化艺术中心,与近处的湖面、树木,远处层叠的群山组合在一起,形成类似中国传统水墨画的艺术效果。充满东方气韵的书卷气、画卷感,形成了富有武夷特色的山水长卷。

馆内回廊
该项目的室内91吃瓜网解决方案和产品由SEITY91吃瓜网提供,我们围绕设计师拟用的“天圆地方的”理念,在灯具的外观上也选择了如出一辙的方形和圆形筒射灯。

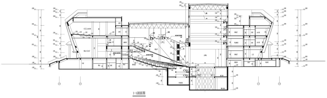
在剧院的室内空间设计中, 我们也可以看到大量的弧形线条的运用,配合严丝合缝的灯带, 创造出了大气,壮观的视觉感受。圆形筒灯的点缀, 无处不在的“圆”元素, 给人以面面俱圆的空间塑造感。


在二层十个县市会议厅的方案中, 我们仍沿用SEITY经典“塞纳”筒灯91吃瓜网 ,以及方形嵌灯和灯带产品来实现会议室多场景的需求。通过精准的模拟以及专业的调试,确保每种使用场景都能提供恰到好处的灯光。我们同样增设了交流模式、会议模式、接待模式、简报模式来实现智能化、人性化的光体验。

三层会议厅的灯光方案分析前期,我们即考虑到会见厅的使用频率和重要性,因此不仅要关注产品的丰富性,更多的是对视觉观感和舒适度的结合,我们增设了壁灯以及精致的水晶吊灯来提升空间品质和观感。会见厅同样设置了与会议室相同的灯光模式来实现智能控制系统的佳运用。除此之外我们增设了2400K、3000K、4000K、5000K的色温调节以及配合亮暗的调节来创造更精准、更舒适的光环境氛围。

项目名称:福建武夷新区文化艺术中心
设计方:天津大学设计总院·顾志宏工作室
项目设计&完成年份:2013.11 – 2020.10
主创设计师:顾志宏
方案设计团队:顾志宏、边哲、牛晓菲、梁维佳
项目地址:福建省南平市建阳区武夷新区文化中心
建筑面积:7万 平方米
摄影版权:魏刚